Enviar imóvel a amigo
Saber mais »
captcha
Campos obrigatórios *

castelo-branco-t3-novo-construção

310 000 €
Seguir imóvel Receba um alerta quando existir uma Baixa de Preço
Nome
Insira o código da imagem
captcha
Código
3
3
140,3 m²
169 m²
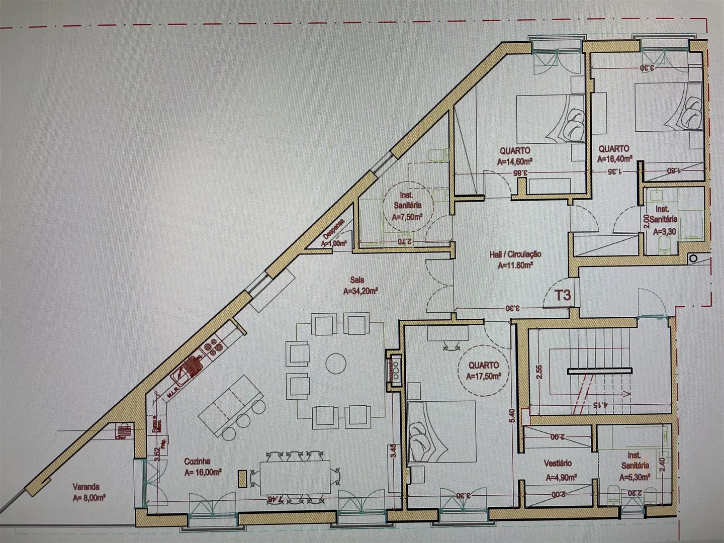
Apartamento novo em fase de construção de tipologia T3 com estacionamento, duas suites uma delas com closet e wc completo.
- Sala 34.20m2 com salamandra a pellet´s;
- cozinha (equipada) 16m2;
- suite 17.50m2;
- closet 4.90m2;
-  wc suite 5.30m2 com janela;
- suite 16.40m2;
- wc suite 3.30m2;
-quarto 14.60m2;
- wc completo 7.50m2 com janela;
- hall de entrada 11.60m2.
- Parqueamento e arrumo.
Prazo previsto para terminar obra 18 meses.
+ em sgh-imobiliaria.com
 
Tipo de imóvel Apartamento
Tipologia 3 Quartos
Objetivo Venda
Estado Novo
Preço 310 000 €
Ano Construção 2025
País Portugal
Distrito Castelo Branco
Concelho Castelo Branco
Freguesia Castelo Branco
Zona Qta. da Parrela
Interessado no Imóvel?
Data
Hora
Nome
Contacto
Mensagem
captcha
Código

Simulador Crédito Habitação e IMT

Simulador de Crédito
Simulador de IMT
Valor do imóvel*
Montante de Empréstimo*
A sua idade*
Prazo empréstimo *
Prestação Mensal 0.00
O valor da prestação apresentada não inclui Seguro de Vida e Seguro Lar.
Indexante 0.000%
TAEG 0.000%
Spread 0.000%
Prazo 0 anos
TAN 0.000%
Simular Inserir aqui o disclaimer. Isto é apenas uma simulação. Esta simulação de crédito não tem fins lucrativos.
Local do imóvel*
Finalidade*
Valor do imóvel*
Valores complementares*
IMT 0.00
Imposto de Selo (0,8%) 0.00
Valores complementares 0.00
Total a pagar 0.00
Mais informações Simular Inserir aqui o disclaimer. Isto é apenas uma simulação. Esta simulação de crédito não tem fins lucrativos. Dados de Intermediação de Crédito - (Intermediário de Crédito nº )
Características Gerais
Gerais
  •  
Divisões
Divisões Área Pavimento Paredes Tectos Observações
 
Meio Envolvente
  •  
Facilidades
  •  
Domótica
  •  
Energias Renováveis
  •  
Veja também
  • Apartamento T4 - Centro da Cidade
  • Apartamento T4 - Centro da Cidade
  • Apartamento T4 - Centro da Cidade
  • Apartamento T4 - Centro da Cidade
  • Apartamento T4 - Centro da Cidade
Apartamento T4 - Centro da Cidade
Castelo Branco, Castelo Branco
675 €
Apartamento T4 - Centro da Cidade
675 €
Apartamento T4 - Centro da Cidade Castelo Branco, Castelo Branco
3
2
138,3 m² A. Útil
Contactar
  • Remodelado - Venda Rés do Chão
  • Remodelado - Venda Rés do Chão
  • Remodelado - Venda Rés do Chão
  • Remodelado - Venda Rés do Chão
  • Remodelado - Venda Rés do Chão
Remodelado - Venda Rés do Chão
Castelo Branco, Castelo Branco
147 500 €
Remodelado - Venda Rés do Chão
147 500 €
Remodelado - Venda Rés do Chão Castelo Branco, Castelo Branco
3
1
80 m² A. Bruta
80 m² A. Útil
Contactar
  • Apartamento T2 Arrendar, Castelo Branco
  • Apartamento T2 Arrendar, Castelo Branco
  • Apartamento T2 Arrendar, Castelo Branco
  • Apartamento T2 Arrendar, Castelo Branco
  • Apartamento T2 Arrendar, Castelo Branco
Reservado
Apartamento T2 Arrendar, Castelo Branco
Castelo Branco, Castelo Branco
550 €
Apartamento T2 Arrendar, Castelo Branco
550 €
Apartamento T2 Arrendar, Castelo Branco Castelo Branco, Castelo Branco
2
1
85 m² A. Útil
Contactar
Estamos disponíveis para o ajudar Pretendo ser contactado
Data
Hora
Nome
Contacto
Mensagem
captcha
Código
O que é a pesquisa responsável
Esta pesquisa permite obter resultados mais ajustados à sua disponibilidade financeira.