Wohnbezirk 3 Schlafzimmer - Castelo Branco, Castelo Branco
175 000 €
4
3
172,6 m²
210 m²
173 m²
Art der Immobilie
Wohnbezirk
Typologie
4 Zimmer
Grund
Verkaufen
Zustand
gebraucht
Preis
175 000 €
Baujahr
N/D
Land
Portugal
Bezirk
Castelo Branco
Standort
Castelo Branco
Gemeinde
Alcains
Zone
N/D
Hauskredit und IMT-Simulator
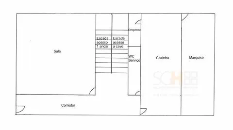
Allgemeine Merkmale
Aufteilung
|
Aufteilung |
Bereich |
Etage |
Walls |
Decken |
Kommentare |
|
| |
Elektronische Haussteuerung
O que é a pesquisa responsável
Esta pesquisa permite obter resultados mais ajustados à sua disponibilidade financeira.